PROJECTS
HOW WE WORK
FIRM PROFILE
CONTACT
RESIDENTIAL
COMMERCIAL
INTERIORS
HEALTH SCIENCES
RETAIL
SPECIALTY
Built
Truesdale Clinic
Dedham Community House
Beechwood Hotel Entry
State Street Parking
1443 Beacon St. Apts
Drew Mortgage
SBLI
Edge Sports Center
Unbuilt
City Squash
Blackstone Lofts
Harbor Park Pavillion
St. George Methuen
St. George Norwood
Tufts Machinery
Data Centers
Genuity Data Centers
Lightower Data Center
Access Northeast Data Center
Savvis Data Center
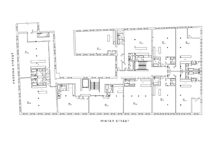
Blackstone Lofts
2006 – Worcester, MA
1
2